T143-2 【スケルトン×軽飲食可】仙台大町の1階店舗

◆思い描いた理想の空間を、ここで
仙台・大町の一角、穏やかな通りに佇む1階区画
この物件は、内装を一から作り上げる“スケルトン渡し”
あなたのセンスがダイレクトに空間に反映されます
◆カフェ、ベーカリー、ギャラリー併設型店舗にも
軽飲食が相談可能な希少区画
通勤・通学の人々が行き交う落ち着いたロケーションは
常連に愛される店舗づくりにぴったり
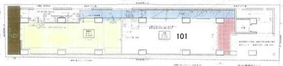
◆21坪の広さが叶える、自由な設計
天井高もあり、自然光も程よく入る明るさが魅力
どんなレイアウトも想像できます
「自分だけの空間を創る」
そんなクリエイター気質の方にこそ
選んでほしい場所です
◆あなたの「理想のお店」、ここから始めませんか?
是非一度ご内覧ください
お問い合わせお待ちしております

最寄り駅の1日平均乗車人員
・青葉通一番町駅 (仙台市地下鉄東西線): 23,281人 (2023年度)
補足: 青葉通一番町駅は、仙台市地下鉄東西線の駅で、仙台市の中心部に位置しており、ビジネス街や商業施設へのアクセスに優れています。
近隣のビル・公共施設
・仙台市役所(徒歩圏内)
・晩翠草堂(徒歩圏内)
・仙台高等裁判所(徒歩圏内)
・仙台弁護士会館(徒歩圏内)
・東北大学片平キャンパス(徒歩圏内)
・藤崎本館、一番町ステアなど商業施設(徒歩圏内)
・ローソン、ファミリーマート、セブンイレブンなどのコンビニエンスストア(徒歩圏内)
公務員・ビジネスマン層、学生、地元住民の利用が見込まれ、平日ランチやアフター5だけでなく、休日の利用も期待できます。
エリアの今後の予測
【ポジティブ要素】
・仙台市は2023年度よりナイトタイムエコノミー推進のための補助金交付を開始しており、夜間営業の活性化が期待されます。宿泊客の滞在時間延長や観光消費拡大に繋がるナイトコンテンツ創出を支援しています。
・仙台市はインバウンド誘致に力を入れており、国分町エリアを含め、外国人観光客の増加が見込まれます。これにより、多様な顧客層へのアプローチが可能となります。
・地下鉄東西線「青葉通一番町駅」から徒歩圏内という利便性の高い立地は、今後も安定した集客を見込めます。
【ネガティブ要素】
・中心部に位置するため、既存の飲食店や物販店などの競合が多く、価格競争やサービスの差別化がより一層重要となります。
・夜間営業を行う場合、近隣住民への騒音やゴミなどの配慮が必要となり、良好な関係構築が求められます。
種別 |
貸店舗 |
|---|---|
所在 |
仙台市青葉区大町一丁目 |
階 |
1階 |
沿線 最寄駅 |
地下鉄東西線「青葉通一番町駅」徒歩5分 |
賃料 (税別) |
296,380円 |
管理費(税別) |
無 |
敷/礼 |
120万円 0ヶ月 |
面積 |
69.99㎡ 21.17坪 |
図面と現況が異なる場合は現況を優先致します
| 契約時に必要な金額(税別) | 毎月必要な金額(税別) | ||||
|---|---|---|---|---|---|
| 前家賃(賃料+管理費等) | 296,880 | 賃料 | 296,380 | ||
| + | 敷金 | 1,200,000 | + | 町内会費 | 500 |
| + | 礼金 | 0 | |||
| + | 仲介手数料 | 296,380 | |||
| + | 賃貸保証料 | 296,880 | |||
| 合計 | 2,090,140 | 合計 | 296,880 | ||
※合計額は概算です。実際の契約時とは異なる場合があります
※契約時には火災保険料が別途必要になります
※前家賃は当月分(日割り計算)+翌月分となる場合があります
※物件により鍵交換代など、その他費用がかかる場合があります
| 建物構造 | 鉄筋コンクリート造 | 天井高 | - |
|---|---|---|---|
| 築年 | 2006年3月 | 階数/所在階 | 地上5階建/1階部分 |
| 駐車場 | 無 | 改築 | - |
| 方位 | - | 現況 | 空 |
| 入居予定年月 | 相談 | 入居条件 | - |
| 契約期間 | 普通5年 | 取引態様 | 仲介 |
| 本体設備 | 電気・上下水道 | ||
| 各戸設備 | - | ||
| 備考 | ※借家人賠償保険料別途 |
||


