T3635-8 【レイアウト自由/立地◎】仙台駅前のゆとり空間

◆仙台駅徒歩2分、37坪の開放感
仙台市青葉区中央1丁目
人の流れが絶えないこのエリアに
ひときわ静かで洗練された空間があります
JR仙台駅から徒歩3分、地下鉄からはたったの2分
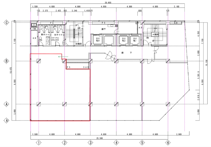
8階のこちらの区画は、約37坪の広さを誇り
自由なレイアウトであらゆるビジネスに応えます
◆窓面の広さが印象的な明るい室内
8階からの眺望は
都心の喧騒を少しだけ忘れさせてくれる贅沢
大きな窓から光が差し込む室内は
受付・カウンセリングスペースなどの配置がしやすく
エステや美容クリニックにもぴったりな環境です
◆機能性と安心を備えた設備
築年はあるものの、2005年に耐震補強工事を完了済
共用部は清潔に保たれ、来訪者にも信頼感を与える仕様
スピード感のある開業には大きなアドバンテージになります。
◆ビジネスの“顔”になる場所に
中央1丁目。ビジネスの中心地でありながら
静けさと明るさを兼ね備えたこの空間で
新たなスタートを切ってみませんか?


最寄り駅の1日平均乗車人員
JR・地下鉄南北線・東西線 仙台駅:92,919人 (JR東日本、2024年度、1日平均乗車人員)
近隣のビル・公共施設
・エスパル仙台店(直結・徒歩1分以内)
・仙台パルコ(徒歩1分)
・ヨドバシカメラマルチメディア仙台(徒歩約5分)
・AER(アエル)(徒歩約3分)
JR仙台駅に極めて近接しており、主要商業施設が密集しています。ビジネス・観光客から、駅周辺で買い物をする地元住民まで、幅広い層の往来が多いエリアです。
エリアの今後の予測
【ポジティブ要素】
・駅前開発の継続: 仙台駅東口の再開発(ヨドバシ仙台出店など)による人流増加が西口エリアにも波及する可能性。
・新幹線・在来線の拠点: 東北地方の玄関口として、観光・ビジネス需要ともに安定して高い利用が見込めます。
・インバウンド需要: 国際線や新幹線利用の増加に伴い、外国人観光客の需要がさらに期待されます。
【ネガティブ要素】
・家賃・地価の高水準: 仙台市内で最も地価が高く、出店・経営コストが高くなる傾向にあります。
・競合の激化: 商業施設や飲食店が集中しているため、既存の競合店との差別化や集客戦略が重要となります。
・駅利用客の流動性: 利用者の多くが「通過客」であるため、立ち止まらせるための魅力的な店舗づくりが必要です。
種別 |
貸店舗・貸事務所 |
|---|---|
所在 |
仙台市青葉区中央一丁目 |
階 |
8階 |
沿線 最寄駅 |
JR線「仙台駅」徒歩3分 |
賃料 (税別) |
相談 |
管理費(税別) |
143,298円 |
敷/礼 |
相談 |
面積 |
124.66㎡ 37.71坪 |
図面と現況が異なる場合は現況を優先致します
| 建物構造 | 鉄骨鉄筋コンクリート造 | 天井高 | - |
|---|---|---|---|
| 築年 | 1996年6月 | 階数/所在階 | 地下2階地上9階建/8階部分 |
| 駐車場 | 無 | 改築 | - |
| 方位 | - | 現況 | - |
| 入居予定年月 | 相談 | 入居条件 | - |
| 契約期間 | 2028年12月末まで | 取引態様 | 仲介 |
| 本体設備 | 都市ガス・上下水道・共用トイレ・共用台所・エレベータ― | ||
| 各戸設備 | エアコン | ||
| 備考 | ※借家人賠償保険料別途 |
||

