T4324 【仙台駅徒歩3分/分割可◎】使い方無限大の大型区画

◆圧倒的なスケール、約500坪
仙台駅から徒歩3分
地下鉄とのダブルアクセスも可能
地下1階+1階で合計約542坪(1,792㎡)という
圧巻の広さを誇ります
◆一括貸しも分割も自由自在
地下1階と1階の一括貸しが基本ですが
分割でのご相談も可能です
物販、アミューズメント、ジム、展示会場など
想像力次第で活用の幅は無限
店舗設計の自由度が高く
重飲食の相談も可能な柔軟性も魅力です
◆視認性良好な立地
南側道路に面し、視認性も申し分なし
人の流れが絶えない仙台駅西口エリアで
ビジネスのスタートを
大きく後押ししてくれるロケーションです
◆この規模、この立地。
仙台市中心部で「約500坪一括貸し」が叶う機会
仙台での出店・拡張・新業態の拠点として
ぜひご検討ください
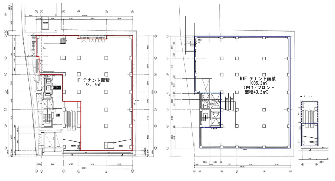
【1階】

【地下1階】


最寄り駅の1日平均乗車人員
58,829人 (JR仙台駅・2023年度)
近隣のビル・公共施設
・仙台駅(徒歩約5分)
・仙台PARCO、仙台PARCO2(徒歩約3~5分)
・AER(アエル)(徒歩約7分)
・SS30(徒歩約5分)
・オフィスビル群(住友生命仙台中央ビル、仙台マークワンなど)
仙台駅に近く、オフィスビルや商業施設が集中するエリアです。通勤客、ビジネスマン、買い物客など、昼夜問わず多くの人の流れが見込めます。
エリアの今後の予測
【ポジティブ要素】
・仙台駅東口・西口の再開発が継続しており、エリア全体の利便性・魅力がさらに向上する見込み。
・仙台駅直結の商業施設やオフィスビルの集積により、広域からの集客が安定している。
・宮城県内随一の交通結節点であるため、県外からの観光客やビジネス客の利用も見込める。
【ネガティブ要素】
・既に多様な業態の飲食店や商業施設がひしめき合っており、新規参入には明確なコンセプトや差別化が必要。
・駅周辺は賃料相場が高めであるため、事業計画における収支予測を慎重に行う必要がある。
・週末やイベント時の混雑が激しく、店舗運営の体制を整える必要がある。
種別 |
貸店舗 |
|---|---|
所在 |
仙台市青葉区中央三丁目 |
階 |
地下1階・1階 |
沿線 最寄駅 |
JR線「仙台駅」徒歩3分 |
賃料 (税別) |
相談 |
管理費(税別) |
相談 |
敷/礼 |
12ヶ月 1ヶ月 |
面積 |
1階 787.7㎡ 238.27坪 地下1階 1005.2㎡ 304.07坪 合計 1,792.9㎡ 542.35坪 |
図面と現況が異なる場合は現況を優先致します
| 建物構造 | 鉄筋コンクリート造 | 天井高 | - |
|---|---|---|---|
| 築年 | 2007年3月 | 階数/所在階 | 地下1階地上9階建/1階・地下1階部分 |
| 駐車場 | 無 | 改築 | - |
| 方位 | - | 現況 | 空 |
| 入居予定年月 | 相談 | 入居条件 | - |
| 契約期間 | 定期借家契約10年以上(協議の上更新可能) | 取引態様 | 仲介 |
| 本体設備 | 都市ガス | ||
| 各戸設備 | - | ||
| 備考 | ※借家人賠償保険料別途 |
||

