T5433-1 【重飲食OK/新築路面店】仙台・新寺で開業チャンス!

※外観イメージパース
※実際の完成物件とは異なる場合があります
■重飲食OKな新築物件
新築でありながら重飲食業態もOK
飲食店開業を目指す方にとっては
理想的なスタートとなるのではないでしょうか
■視認性の高い路面店
通行人の目を引く路面の1階部分に位置し
店舗としての存在感は抜群
地元住民はもちろん
近隣のオフィスワーカーや学生の流れも期待できます
■木造平屋のシンプルな魅力
ナチュラルな風合いの木造構造が
店舗の雰囲気を優しく包みます
小規模ながらも洗練された空間設計で
個性を活かした店舗づくりが可能です
■仙台駅&連坊駅から徒歩圏
地下鉄東西線「連坊駅」から徒歩9分
JR「仙台駅」からも徒歩14分と
アクセスも申し分なし
スタッフの通勤にも便利な立地です
この新築路面店舗で
あなたの“はじめの一歩”を踏み出しませんか?
心から「ここにお店を出したい」と思える場所
お問い合わせお待ちしております
最寄り駅の1日平均乗車人員
JR仙台駅(東口側徒歩圏内):67,626人 (JR東日本 2021年度) – JR線のみ
近隣のビル・公共施設
新寺エリアは仙台駅東口の南側に位置し、オフィスビル、専門学校、集合住宅が多い地域です。
・仙台市立東華中学校(約300m)
・新寺公園(約300m)
・東口エリアのオフィスビル群:徒歩10分圏内に集中。
・専門学校・予備校:学生向けの施設が複数存在します。
仙台駅東口の商業・ビジネスエリアに近接しており、通勤するビジネスマン層、駅周辺の専門学校や予備校に通う学生層、そして駅へのアクセスを重視する単身の居住者層の利用が見込めます。特に平日のランチや夕方の需要が期待されます。
エリアの今後の予測
【ポジティブ要素】
・仙台駅東口の利便性向上:駅東口側の再開発は継続的に進んでおり、新たなオフィスや商業施設の整備により、広域からの集客力と流入人口の増加が期待できる。
・居住人口の安定:新寺エリアは利便性が高く、マンション開発も活発なため、単身者や若年層の定住が進みやすく、安定した消費人口が見込める。
【ネガティブ要素】
・競合の激化:仙台駅東口周辺や新寺小路エリアには既存の飲食店・サービス店が多く、競争が激しいため、独自のコンセプトや高いサービス品質による差別化が不可欠です。
・住環境への配慮:周辺は住宅地としての性格も持つため、特に深夜の営業を行う場合は、騒音や臭気、ゴミ管理など、近隣住民とのトラブルを避けるための徹底した対策が必要となります。
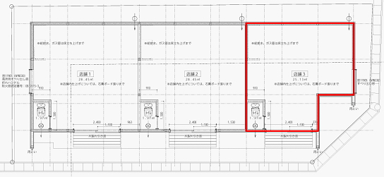
種別 |
貸店舗 |
|---|---|
所在 |
仙台市若林区新寺三丁目 |
階 |
1階 |
沿線 最寄駅 |
JR線「仙台駅」徒歩14分 |
賃料 (税別) |
130,000円 |
管理費(税別) |
無 |
敷/礼 |
0ヶ月 0ヶ月 |
面積 |
25.13㎡ 7.60坪 |
図面と現況が異なる場合は現況を優先致します
| 契約時に必要な金額(税別) | 毎月必要な金額(税別) | ||||
|---|---|---|---|---|---|
| 前家賃(賃料+管理費等) | 130,000 | 賃料 | 130,000 | ||
| + | 敷金 | 0 | |||
| + | 礼金 | 0 | |||
| + | 仲介手数料 | 130,000 | |||
| + | 賃貸保証料 | 130,000 | |||
| 合計 | 390,000 | 合計 | 130,000 | ||
※合計額は概算です。実際の契約時とは異なる場合があります
※契約時には火災保険料が別途必要になります
※前家賃は当月分(日割り計算)+翌月分となる場合があります
※物件により鍵交換代など、その他費用がかかる場合があります
| 建物構造 | 木造 | 天井高 | - |
|---|---|---|---|
| 築年 | 2026年4月予定 | 階数/所在階 | 地上1階建/1階部分 |
| 駐車場 | 無 | 改築 | - |
| 方位 | - | 現況 | 建築前 |
| 入居予定年月 | 相談 | 入居条件 | - |
| 契約期間 | 定期10年 | 取引態様 | 仲介 |
| 本体設備 | 電気・上下水道・都市ガス | ||
| 各戸設備 | トイレ・エアコン | ||
| 備考 | ※借家人賠償保険料別途 |
||


