T5433-2 【重飲食可/新築/敷金礼金ゼロ】仙台・新寺の新築路面店


~AGORA新寺~
【新築×重飲食可能】この場所で、“自分の店”を始めるチャンス。
独立開業を目指す方にとって、「新築」「路面」「重飲食可能」という条件が揃う物件は、そう何度も出会えるものではありません。
仙台市若林区新寺に誕生したこの店舗は、まさにこれから店を持ちたい方にこそ見てほしい、希少性の高い一件です。
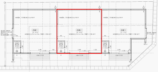
約28.45㎡の使いやすい広さに、天井の高い開放感ある空間。
コンパクトでありながら圧迫感がなく、ラーメン店、焼鳥店、居酒屋、洋食店、中華、和食、定食店、レストラン、菓子・ケーキ店まで、業態の個性をしっかり表現できる店舗空間です。
さらに、美容室・理容室・ネイルサロンなどでもご検討いただけます。
この物件の魅力は、建物の新しさや見た目だけではありません。
重飲食可能な新築路面店というだけでも十分に価値がありますが、加えて競合の少ないエリアであることも大きなポイント。
「良い立地は家賃が高い」「出店しても競合が多い」――そんな悩みを抱える独立開業者にとって、攻める価値のある立地条件が揃っています。
しかも、家賃は13万円(税別)、敷金・礼金なし。
開業時に大きな負担となる初期費用を抑えられるため、内装や厨房設備、看板、広告など、“お店づくりそのもの”にしっかり資金をかけられるのも魅力です。
トイレ・エアコン付き、床まで仕上げ渡しのため、スタートのしやすさも十分です。
さらに注目したいのは、このエリアの将来性です。
宮沢橋の架橋により、今後は交通量の増加が期待され、周辺の人の流れにも変化が見込まれています。
加えて、2027年には近隣に**総戸数478戸・東北最大級のマンション「グランスカイ仙台」**が竣工予定。
新たな居住人口の増加により、飲食店をはじめとした地域需要の高まりが期待されます。
また、仙台二華中高が近く、学生・教職員・ファミリー層など、幅広い客層を見込めるロケーションでもあります。
今すぐ集客を狙える条件と、これから先の需要増加への期待。
その両方を備えた物件は多くありません。
「いつか自分の店を持ちたい」
そう考えていた方にとって、この物件はただの空き店舗ではなく、
理想の独立開業を現実に変えるためのスタート地点になるはずです。
新築で、重飲食可能で、路面で、しかも将来性のある立地。
この条件が揃った物件に出会えたときが、動くタイミングです。
本気で独立を考えている方に、ぜひ一度ご覧いただきたい希少物件です。
金融機関への融資の取次などもご相談ください。


最寄り駅の1日平均乗車人員
JR仙台駅(東口側徒歩圏内):67,626人 (JR東日本 2021年度) – JR線のみ
近隣のビル・公共施設
新寺エリアは仙台駅東口の南側に位置し、オフィスビル、専門学校、集合住宅が多い地域です。
・仙台市立東華中学校(約300m)
・新寺公園(約300m)
・東口エリアのオフィスビル群:徒歩10分圏内に集中。
・専門学校・予備校:学生向けの施設が複数存在します。
仙台駅東口の商業・ビジネスエリアに近接しており、通勤するビジネスマン層、駅周辺の専門学校や予備校に通う学生層、そして駅へのアクセスを重視する単身の居住者層の利用が見込めます。特に平日のランチや夕方の需要が期待されます。
エリアの今後の予測
・仙台駅東口の利便性向上:駅東口側の再開発は継続的に進んでおり、新たなオフィスや商業施設の整備により、広域からの集客力と流入人口の増加が期待できる。
・居住人口の安定:新寺エリアは利便性が高く、マンション開発も活発なため、単身者や若年層の定住が進みやすく、安定した消費人口が見込める。
種別 |
貸店舗 |
所在 |
仙台市若林区新寺三丁目 |
階 |
1階 |
沿線 最寄駅 |
JR線「仙台駅」徒歩14分 |
賃料 (税別) |
130,000円 |
管理費(税別) |
無 |
敷/礼 |
0ヶ月 0ヶ月 |
面積 |
28.45㎡ 8.61坪 |
図面と現況が異なる場合は現況を優先致します
|
契約時に必要な金額(税別) |
毎月必要な金額(税別) |
| 前家賃(賃料+管理費等) |
130,000 |
賃料 |
130,000 |
| + |
敷金 |
0 |
|
|
|
| + |
礼金 |
0 |
|
|
|
| + |
仲介手数料 |
130,000 |
|
|
|
| + |
賃貸保証料 |
130,000 |
|
|
|
|
|
|
|
|
|
|
|
|
|
|
|
| |
合計 |
390,000 |
|
合計 |
130,000 |
※合計額は概算です。実際の契約時とは異なる場合があります
※契約時には火災保険料が別途必要になります
※前家賃は当月分(日割り計算)+翌月分となる場合があります
※物件により鍵交換代など、その他費用がかかる場合があります
【詳細情報】
| 建物構造 |
木造 |
天井高 |
- |
| 築年 |
2026年4月予定 |
階数/所在階 |
地上1階建/1階部分 |
| 駐車場 |
無 |
改築 |
- |
| 方位 |
- |
現況 |
建築前 |
| 入居予定年月 |
相談 |
入居条件 |
- |
| 契約期間 |
定期10年 |
取引態様 |
仲介 |
| 本体設備 |
電気・上下水道・プロパンガス |
| 各戸設備 |
トイレ・エアコン |
| 備考 |
※借家人賠償保険料別途
※賃貸保証加入要
※消費税別途
※完成時期は変更になる場合がございます
※建築確認番号:第東日本25-12958号
|