T5433-3 【新築×1階路面】美容・物販OK◎新寺で開業!

~AGORA新寺~
【新築路面店】“選ばれるサロン”をつくりたい方へ。感度の高い独立開業にふさわしい、希少な一件。
仙台市若林区新寺で、美容室・理容室・ネイルサロンをお考えの方にぜひ注目していただきたい、新築の路面店舗が登場しました。
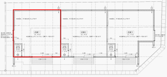
約28.45㎡の空間は、ひとり開業や少人数でのサロン運営にちょうどいいサイズ感。
さらに、天井が高く開放感のあるつくりのため、面積以上に広く見せやすく、コンパクトサロンでも圧迫感を感じさせません。
セット面の配置や照明、ミラー、インテリア次第で、洗練された世界観をしっかり表現できる空間です。
この物件の魅力は、ただ新しいだけではありません。
路面店ならではの視認性があり、通りがかる方の目に留まりやすく、サロンの存在を自然に印象づけることができます。
特に美容室・理容室・ネイルサロンは、技術だけでなく“お店の雰囲気”そのものが選ばれる理由になる業種。
だからこそ、第一印象をつくりやすい新築デザイナーズ物件には大きな価値があります。
しかも、家賃13万円(税別)、敷金・礼金なし。
独立開業時の大きな負担となる初期費用を抑えながら、内装デザインや設備、商材、広告にしっかり資金をかけられるのは大きな魅力です。
トイレ・エアコン付き、床まで仕上げ渡しのため、開業準備を進めやすい点も見逃せません。

さらに、このエリアは今後の将来性にも期待できる立地です。
宮沢橋の架橋による交通量増加が見込まれ、2027年には近隣に総戸数478戸の大規模マンション「グランスカイ仙台」が竣工予定。
今後、新たな居住人口の流入によって、地域の生活動線の中で利用される美容系店舗への需要も高まる可能性があります。
加えて、周辺は競合が少なく、これから地域に根づくサロンを育てていきたい方にとって魅力的な環境です。

“広すぎず、狭すぎない”絶妙なサイズ感。
“新築ならでは”の清潔感と印象の良さ。
そして、これから先の需要が期待できる立地。
自分のセンスを形にしたい。
お客様に長く愛される美容室をつくりたい。
そんな想いを持つ方にこそ、この物件はおすすめです。
新しく始めるからこそ、場所にもこだわりたい。
そう考える方にふさわしい、貴重な新築路面店舗です。

最寄り駅の1日平均乗車人員
JR仙台駅(東口側徒歩圏内):67,626人 (JR東日本 2021年度) – JR線のみ
近隣のビル・公共施設
新寺エリアは仙台駅東口の南側に位置し、オフィスビル、専門学校、集合住宅が多い地域です。
・仙台市立東華中学校(約300m)
・新寺公園(約300m)
・東口エリアのオフィスビル群:徒歩10分圏内に集中。
・専門学校・予備校:学生向けの施設が複数存在します。
仙台駅東口の商業・ビジネスエリアに近接しており、通勤するビジネスマン層、駅周辺の専門学校や予備校に通う学生層、そして駅へのアクセスを重視する単身の居住者層の利用が見込めます。特に平日のランチや夕方の需要が期待されます。
エリアの今後の予測
・仙台駅東口の利便性向上:駅東口側の再開発は継続的に進んでおり、新たなオフィスや商業施設の整備により、広域からの集客力と流入人口の増加が期待できる。
・居住人口の安定:新寺エリアは利便性が高く、マンション開発も活発なため、単身者や若年層の定住が進みやすく、安定した消費人口が見込める。
種別 |
貸店舗 |
|---|---|
所在 |
仙台市若林区新寺三丁目 |
階 |
1階 |
沿線 最寄駅 |
JR線「仙台駅」徒歩14分 |
賃料 (税別) |
130,000円 |
管理費(税別) |
無 |
敷/礼 |
0ヶ月 0ヶ月 |
面積 |
28.45㎡ 8.61坪 |
図面と現況が異なる場合は現況を優先致します
| 契約時に必要な金額(税別) | 毎月必要な金額(税別) | ||||
|---|---|---|---|---|---|
| 前家賃(賃料+管理費等) | 130,000 | 賃料 | 130,000 | ||
| + | 敷金 | 0 | |||
| + | 礼金 | 0 | |||
| + | 仲介手数料 | 130,000 | |||
| + | 賃貸保証料 | 130,000 | |||
| 合計 | 390,000 | 合計 | 130,000 | ||
※合計額は概算です。実際の契約時とは異なる場合があります
※契約時には火災保険料が別途必要になります
※前家賃は当月分(日割り計算)+翌月分となる場合があります
※物件により鍵交換代など、その他費用がかかる場合があります
| 建物構造 | 木造 | 天井高 | - |
|---|---|---|---|
| 築年 | 2026年4月予定 | 階数/所在階 | 地上1階建/1階部分 |
| 駐車場 | 無 | 改築 | - |
| 方位 | - | 現況 | 建築前 |
| 入居予定年月 | 相談 | 入居条件 | - |
| 契約期間 | 定期10年 | 取引態様 | 仲介 |
| 本体設備 | 電気・上下水道・プロパンガス | ||
| 各戸設備 | トイレ・エアコン | ||
| 備考 | ※借家人賠償保険料別途 |
||

