T5452 【居抜譲渡金相談】名取市のロードサイド飲食店舗

■ロードサイドの“即戦力”
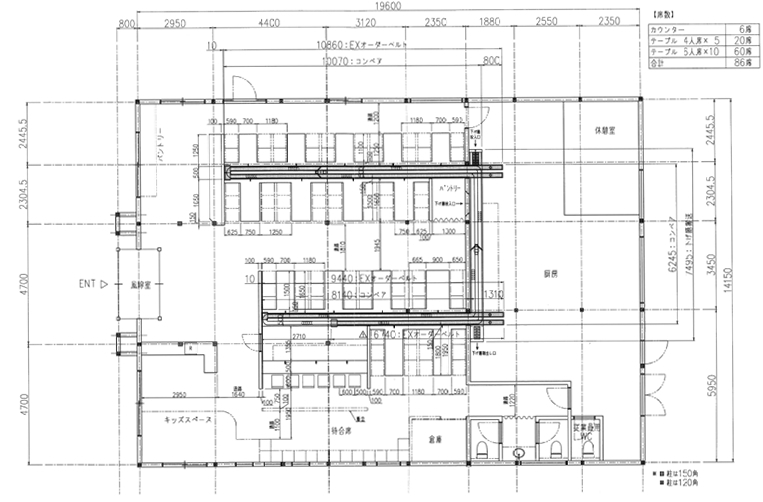
名取市田高字原のロードサイド貸店舗のご紹介です
回転レーンとタッチパネルが残る店内は
ゼロから作る時間を一気に短縮
■83坪・平屋、動線が武器になる
室内面積は約83坪
客席の回遊がつくりやすく
カウンターもボックス席も
気持ちよく配置できます
明るい空間は、昼の集客にも強そうです
■厨房は“現場仕様”
ステンレス中心の厨房に大型フードなど
頼もしい設備感
清潔なトイレもあり
ファミリー導線も安心です
■条件は相談、まずは一歩
賃料・居抜譲渡金は相談
是非ご検討ください
最寄り駅の1日平均乗車人員
名取駅:12,174人(2023年度・JR東日本調べ) ※仙台空港アクセス線を含めるとさらに増加します。
近隣のビル・公共施設
・名取市役所(徒歩8分)
・名取市文化会館(徒歩10分)
・名取中央クリニック(徒歩2分)
市役所や文化施設が徒歩圏内にあり、行政手続きに訪れる市民や、イベント開催時の集客が期待できるエリアです。
エリアの今後の予測
【ポジティブ要素】
・増田・田高エリアの再開発: 近年、周辺では新しい宅地造成が進んでおり、ファミリー層の流入による地域密着型ニーズの拡大が期待できます。
・高い交通利便性: 名取駅は快速停車駅であり、仙台中心部まで約10分という利便性から、ベッドタウンとしての価値が底堅く推移しています。
【ネガティブ要素】
・ロードサイド店舗との競合: 国道4号バイパスが近いため、大型チェーン店に車客が流れる傾向があり、徒歩・自転車圏内の顧客をいかに掴むかが鍵となります。
・夜間の人通りの減少: 住宅街のため夜間は静まりやすく、夜間営業を行う場合は周辺住民への配慮や防犯対策が重要です。
種別 |
貸店舗 |
|---|---|
所在 |
名取市田高字原 |
階 |
1階 |
沿線 最寄駅 |
JR東北本線「名取駅」徒歩16分 |
賃料 (税別) |
相談 |
管理費(税別) |
相談 |
敷/礼 |
相談 |
面積 |
277.34㎡ 83.90坪 |
図面と現況が異なる場合は現況を優先致します
| 建物構造 | 木造 | 天井高 | - |
|---|---|---|---|
| 築年 | - | 階数/所在階 | 平屋建 |
| 駐車場 | 共用駐車場有 | 改築 | - |
| 方位 | - | 現況 | 使用中 |
| 入居予定年月 | 相談 | 入居条件 | - |
| 契約期間 | 相談 | 取引態様 | 仲介 |
| 本体設備 | - | ||
| 各戸設備 | - | ||
| 備考 | ※借家人賠償保険加入要 |
||


